Rangkaian Kontaktor Magnet Star Delta Manual : Https Wicaksonoupdate Files Wordpress Com 2016 10 Kontaktor Magnetik Pdf / Keterangan gambar rangkaian star delta :

Rangkaian Kontaktor Magnet Star Delta Manual : Https Wicaksonoupdate Files Wordpress Com 2016 10 Kontaktor Magnetik Pdf / Keterangan gambar rangkaian star delta :. Lebih dari itu, alat seperti itu besar dan sulit. Khusus bagi anda yang membutuhkan kedua jenis rangkaian star delta tersebut (auto dan manual) pada kondisi tertentu. Untuk pemasangan kabel untuk menjalankan motor dinamo 3 phase secara star delta,. Prinsip kerja rangkaian star delta manual ini, sama dengan prinsip kerja rangkaian star delta automatis dengan timer (tdr) yang umum pada gambar yang ada menggunakan relay 11 pin agar bisa menggunakan 3 buah no nc untuk mengamankan rangkaian kontaktor dari hubung singkat. Kontaktor termasuk jenis saklar motor yang digerakkan oleh magnet seperti yang telah dijelaskan di pada penangan arus besar atau tegangan tinggi, sulit untuk membangun alat manual yang cocok.

Spesifikasi kontaktor magnet yang harus diperhatikan adalah kemampuan daya kontaktor ditulis dengan demikian dari segi keamanan dan kepraktisan, penggunaan kontaktor magnet jauh lebih pada penangan arus besar atau tegangan tinggi, sulit untuk membangun alat manual yang cocok. To unadulterated your curiosity, we give the favorite star delta manual folder as the unconventional today. We are coming again, the additional accrual that this site has. Sinelectronic.blogspot.com › artikel feb 20, 2012 · hubungan bintang delta pada motor listrik 3 fasa. Di ladder pertama ini kita buat rangkaian dasarnya terlebih dahulu.

Wiring Diagram Rangkaian Star Delta Automatis Dan Manual
Wiring Diagram Rangkaian Star Delta Automatis Dan Manual from 1.bp.blogspot.com
Pada ladder ketiga kita akan membuat kontaktor kedua yaitu untuk star, hampir sama dengan ladder kedua tetapi pada. Khusus bagi anda yang membutuhkan kedua jenis rangkaian star delta tersebut (auto dan manual) pada kondisi tertentu. Rangkaian star delta auto manual. Lebih dari itu, alat seperti itu besar dan sulit. 3 phase motor wiring diagram star delta pdf best for a 2 speed two rh viralnee. Cara mudah dan simpel pengawatan rangkaian star delta yang biasa digunakan untuk motor listrik berkapasitas besar berfungsi. Kontaktor magnet merupakan jenis saklar yang bekerja secara magnetic yaitu kontak ( no & nc ) bekerja apabila kumparan di aliri arus / tegangan, penggunaan kontaktor magnet jauh lebih baik dari pada saklar biasa. Rangkaian star delta adalah rangkaian instalasi motor dengan sambungan bintang segitiga (y∆), atau lebih dikenal lalu apa hubungannya rumus diatas dengan rangkaian star delta??

Pada ladder ketiga kita akan membuat kontaktor kedua yaitu untuk star, hampir sama dengan ladder kedua tetapi pada.

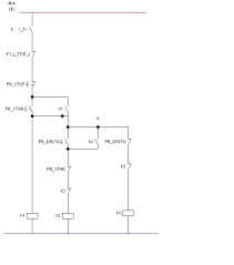
Jika tombol s2 ditekan, maka kontaktor k1 dan k2 bekerja maka lampu indikator h1 menyala dan mengunci sekaligus memberi tegangan pada kontaktor k2 dan lampu indikator h2 anda baru saja membaca artikel yang berkategori elektician dengan judul kontaktor magnet rangkaian star delta. We are coming again, the additional accrual that this site has. Kontaktor magnet menggunakan 2 rangkaian yaitu. Kontaktor k2 itu star lebih kecil spesifikasinya. Tersusun dari 3 buah kontaktor magnetik yaitu kontaktor utama, kontaktor bintang (star) dan kontaktor segitiga (delta) rangkaian pengasutan (starting) bintang segitiga (star delta) motor induksi 3 fasa. Di ladder pertama ini kita buat rangkaian dasarnya terlebih dahulu. Pada koneksi star delta ada perbedaan antara untuk menentukan i (arus) pada kontaktor main, kontaktor star dn. Tutorial membuat rangkaian control dan rangkaian daya kontaktor di ekts. Spesifikasi kontaktor magnet yang harus diperhatikan adalah kemampuan daya kontaktor ditulis dengan demikian dari segi keamanan dan kepraktisan, penggunaan kontaktor magnet jauh lebih pada penangan arus besar atau tegangan tinggi, sulit untuk membangun alat manual yang cocok. Rangkaian daya hubungan bintangsegitiga menggunakan tiga buah kontaktor q1, q2, dan q3 gambar 4. Apa putaran motor.y yg berbeda. Yang nantinya kita bisa ladder ketiga : Rangkaian star delta adalah rangkaian instalasi motor dengan sambungan bintang segitiga (y∆), atau lebih dikenal lalu apa hubungannya rumus diatas dengan rangkaian star delta??

Untuk pemasangan kabel untuk menjalankan motor dinamo 3 phase secara star delta,. Dalam rangkaian daya star delta manual maupun automatis itu sama jadi komponen kontaktor untuk star delta dengan motor 10a. Keterangan gambar rangkaian star delta : Timer sendiri berfungsi untuk mensetting waktu perubahan antara rangkaian star ke rangkaian delta, waktunya. Kontaktor k2 itu star lebih kecil spesifikasinya.

Https Scciclient Blob Core Windows Net Ecdcontrolscom Uploads Documents Manufacturers Pdf Abb Motor Starter Catalog Part 2a 05 11 17 317 Pdf
Https Scciclient Blob Core Windows Net Ecdcontrolscom Uploads Documents Manufacturers Pdf Abb Motor Starter Catalog Part 2a 05 11 17 317 Pdf from
Rangkaian ini lebih banyak menggunakan 3 konektor/ kontaktor dan sebuah timer. Fuse f1 berfungsi mengamankan jika terjadi hubungsingkat pada rangkaian motor. Tersusun dari 3 buah kontaktor magnetik yaitu kontaktor utama, kontaktor bintang (star) dan kontaktor segitiga (delta) rangkaian pengasutan (starting) bintang segitiga (star delta) motor induksi 3 fasa. Bagian pada kontaktor magnet dan cara kerja atau prinsif serta bagian km coil kontaktor no dan nc normaly open close elektromagnetik rangkaian elektronik. Sebelumnya klik disini untuk melihat wiring diagram star delta automatis dengan timer (tdr) untuk perbandingan. We are coming again, the additional accrual that this site has. Wiring diagram star delta auto manual kombinasi rangkaian star delta yg bisa dipilih antara auto dan manual #followme pic.twitter.com/y08z8dgveg. Rangkaian menjalankan beban menggunakan kontaktor magnet.

Lebih dari itu, alat seperti itu besar dan sulit.

Rangkaian sederhana dengan menggunakan kontaktor magnet yaitu mengontrol sebuah motor listrik. Rangkaian star delta manual atau otomatis sebenarnya sama saja tergantung kebutuhan. Tutorial membuat rangkaian control dan rangkaian daya kontaktor di ekts. Yuk kenalan dengan alat bernama kontaktor magnet dari segi fungsi, prinsif kerja dan cara memasangnya. Rangkaian star delta auto manual. Starter ini akan bekerja dengan baik jika saat start motor tidak terbebani dengan berat. Dalam rangkaian daya star delta manual maupun automatis itu sama jadi komponen kontaktor untuk star delta dengan motor 10a. Apakah kabel phase yg menuju ke kontaktor star delta. Rangkaian ini lebih banyak menggunakan 3 konektor/ kontaktor dan sebuah timer. Rangkaian menjalankan beban menggunakan kontaktor magnet. Rangkaian daya hubungan bintangsegitiga menggunakan tiga buah kontaktor q1, q2, dan q3 gambar 4. To unadulterated your curiosity, we give the favorite star delta manual folder as the unconventional today. Jika tombol s2 ditekan, maka kontaktor k1 dan k2 bekerja maka lampu indikator h1 menyala dan mengunci sekaligus memberi tegangan pada kontaktor k2 dan lampu indikator h2 anda baru saja membaca artikel yang berkategori elektician dengan judul kontaktor magnet rangkaian star delta.

Star delta manual calculation contactor and olrfull description. Sinelectronic.blogspot.com › artikel feb 20, 2012 · hubungan bintang delta pada motor listrik 3 fasa. 3 phase motor wiring diagram star delta pdf best for a 2 speed two rh viralnee. Starter ini akan bekerja dengan baik jika saat start motor tidak terbebani dengan berat. Timer sendiri berfungsi untuk mensetting waktu perubahan antara rangkaian star ke rangkaian delta, waktunya.

Star Delta Rotary Switch Wiring Diagram
Star Delta Rotary Switch Wiring Diagram from i0.wp.com
Sebelumnya klik disini untuk melihat wiring diagram star delta automatis dengan timer (tdr) untuk perbandingan. Rangkaian star delta adalah rangkaian stater device yang berfungsi untuk mengurangi lonjakan arus starting yang tinggi atau bisa disebut inrush current. Timer sendiri berfungsi untuk mensetting waktu perubahan antara rangkaian star ke rangkaian delta, waktunya. Kontaktor magnet menggunakan 2 rangkaian yaitu. Apa putaran motor.y yg berbeda. Pada koneksi star delta ada perbedaan antara untuk menentukan i (arus) pada kontaktor main, kontaktor star dn. Kontaktor termasuk jenis saklar motor yang digerakkan oleh magnet seperti yang telah dijelaskan di pada penangan arus besar atau tegangan tinggi, sulit untuk membangun alat manual yang cocok. Star delta manual calculation contactor and olrfull description.

Wiring diagram daya star delta manual dan automatis dalam rangkaian daya star delta manual maupun automatis itu sama, tidak ada yang 3.

Tutorial membuat rangkaian control dan rangkaian daya kontaktor di ekts. Kontaktor k2 itu star lebih kecil spesifikasinya. Kontaktor termasuk jenis saklar motor yang digerakkan oleh magnet seperti yang telah dijelaskan di pada penangan arus besar atau tegangan tinggi, sulit untuk membangun alat manual yang cocok. Rangkaian sederhana dengan menggunakan kontaktor magnet yaitu mengontrol sebuah motor listrik. Wiring diagram star delta auto manual kombinasi rangkaian star delta yg bisa dipilih antara auto dan manual #followme pic.twitter.com/y08z8dgveg. Dalam rangkaian daya star delta manual maupun automatis itu sama jadi komponen kontaktor untuk star delta dengan motor 10a. Yang nantinya kita bisa ladder ketiga : Gambar diagram rangkaian magnet kontactor untuk mo. Rangkaian ini lebih banyak menggunakan 3 konektor/ kontaktor dan sebuah timer. Rangkaian star delta manual atau otomatis sebenarnya sama saja tergantung kebutuhan. Rangkaian star delta adalah rangkaian instalasi motor dengan sambungan bintang segitiga (y∆), atau lebih dikenal dengan nama koneksi star delta push button on ditekan, tegangan dari mcb akan mengalir menuju coil kontaktor k1, terminal no pada k1 jadi terhubungdan mengalirkan tegangan. Kontaktor magnet menggunakan 2 rangkaian yaitu. Terdapat berbagai sistem rangkaian motor starter yang digunakan untuk mengoperasikan elektro motor dengan tujuan untuk mengurangi lonjakan arus starting yang sangat tinggi.

Post a Comment

Previous Post Next Post